设为首页
加为收藏
网站首页
公司简介
新闻中心
服务项目
产品中心
消防维保
工程案例
消防法规
资质证书
联系方式
产品列表
PRODUCTS
上海金盾产品
火灾自动报警系统
自动喷水灭火系统
灭火器(充气换粉)
消防泵
疏散指示标志灯
应急照明灯
可燃气报警系统
室外消火栓
室内消火栓
防火涂料
水带水枪
电磁门锁
防火门
水泵接合器
产品展示
您的当前位置:首页 / 产品展示
防火门
木质双门甲级防火门
钢质防火门
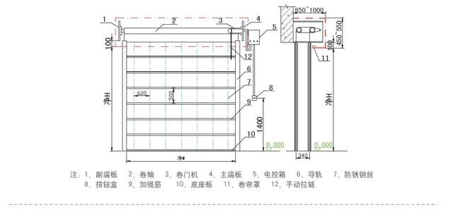
无机双轨防火卷帘门
版权所有:苏州市金盾消防设备有限公司 设计制作:
互创网络
地址:苏州市相城消防大队北侧
电话:0512-67032801??传真:0512-67032815??Email:szjdxf@263.net??szjdxf@foxmail.com
苏州消防维保